中国坤育实业有限公司风水策划案例
来源:大易策划作者:大易策划时间:2018-01-15点击:1189

项目介绍
品牌背景:中国坤育实业有限公司建立于1993年,是一家专门从事食品加工和供给的企业。主要销售的产品有番茄酱,罐头,冷冻食品等。
品牌愿景:中国坤育实业有限公司将贯彻“提供绿色食物,创造高质量生活”的理念。继续为国内外提供高质量产品。努力成为在食品领域的一流企业。
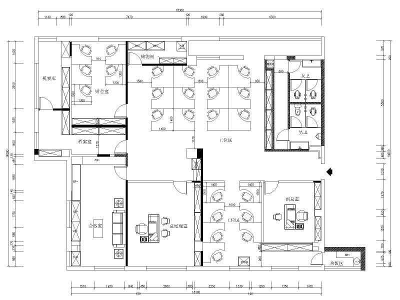
项目实施
风水堪舆:于2017年7月邀请我司杜易知先生进行现场实地选址风水布局,杜老师亲自为总经理室,副总经理室,财务室,办公区及会议室进行了两个多小时的实地勘察,精确细致的现场指导刘总非常满意。
品牌背景:中国坤育实业有限公司建立于1993年,是一家专门从事食品加工和供给的企业。主要销售的产品有番茄酱,罐头,冷冻食品等。
品牌愿景:中国坤育实业有限公司将贯彻“提供绿色食物,创造高质量生活”的理念。继续为国内外提供高质量产品。努力成为在食品领域的一流企业。
项目实施
风水堪舆:于2017年7月邀请我司杜易知先生进行现场实地选址风水布局,杜老师亲自为总经理室,副总经理室,财务室,办公区及会议室进行了两个多小时的实地勘察,精确细致的现场指导刘总非常满意。
- 上一篇:济南博莱威传动技术有限公司起名案例
- 下一篇:没有了
- 您可能需要的服务











